Direkt zum Inhalt
Kunde: Privat
Projekt: WGH (Schutzinventar: wertvoll)
Ort: Riedt b. Erlen (TG)
Jahr: 2020
Dienstleistungen:
  • 3D Massaufnahme & Grundlagenermittlung
  • Planungsdienstleistungen (Kataster, Ansichten, Grundrisse)
  • Fachbereichsplanung (Erstellung Baueingabedossier)
  • Beratung & Abklärung mit Behörden
  • Wohn- & Gewerbehaus

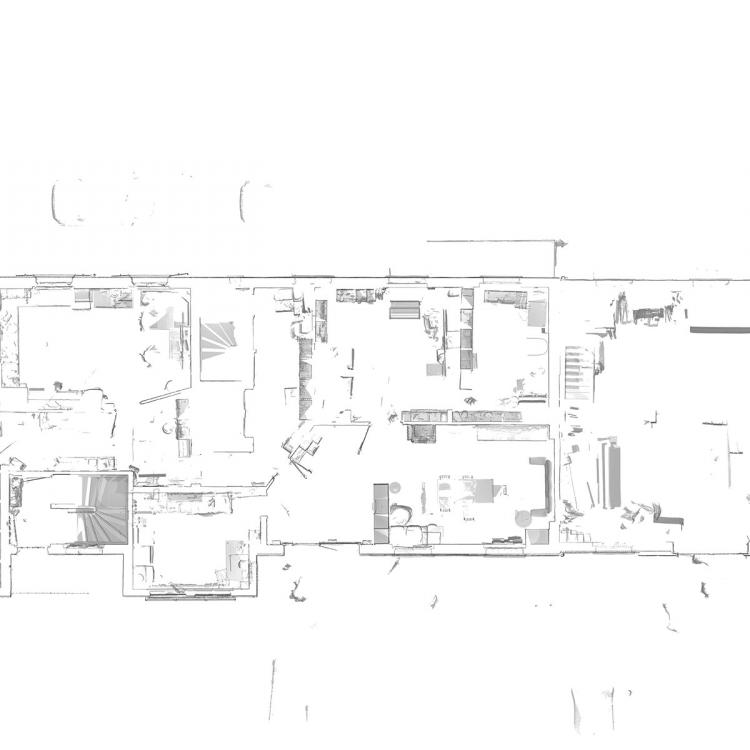
    Nach dem Neuerwerb der Immobilie wünschte der Kunde eine Grundlagenermittlung und beauftragte die RLKP mit der Gebäudeaufnahme und Plandigitalisierung der rund 1'000m² Nutzfläche innen und der Fassadenfläche (ca. 400m²) aussen. 

    Die RLKP erstellte die Grundrisse im 2D CAD und lieferte die Ansichtspläne der Aussenfassade damit der Kunde selber eine Umnutzungsplanung der Gewerbe-, Lager- und Wohnfläche vornehmen konnte.

    Für den Ersatz der alten Fenster im Lagerbereich der Liegenschaft erstellte die RLKP die nötigen Baueingabedokumente und stand dem Kunden beratend zur Seite.

    About

    We are professional and reliable provider since we offer customers the most powerful and beautiful themes. Besides, we always catch the latest technology and adapt to follow world’s new trends to deliver the best themes to the market.